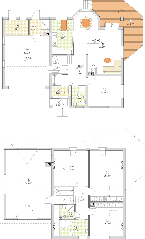
Dzīvojamās ēkas projekts, ēkas platība 280 kvadrātmetri.


Cilvēkam un Dabai draudzīgu māju projekti
Dzīvojamās ēkas projekts, ēkas platība 280 kvadrātmetri.


Interesējos par Dabai un cilvēkam draudzīgiem būvniecības un arhitektūras risinājumiem, projektēju omulīgas mājas un ēkas, īstenoju dažādas savas idejas, gan būvniecībā, gan 3D printēšanā u.c. tehniska rakstura "hobijos" :) Skatīt vairāk ierakstu