Ikdienā saskaroties ar situāciju būvniecības nozarē, redzam, ka mājas ne tikai spēj sniegt ģimenei patvērumu, omulību un laimi, bet arī to atņemt, ja ēkas ir pārmēru sarežģītas un dārgas vai apgrūtinātas ar parādiem. Turklāt, ne vienmēr dārgi būvētās mājas rezultātā arī izskatās atbilstoši – izmantojot paviršus, vai novecojušus, citās valstīs izstrādātus tipveida projektus, gluži vienkārša skata “tintnīca”, vai divstāvu “beka”, ar tajā iekļautajiem tērauda un dzelzsbetona u.c. neracionāliem risinājumiem izmaksā kā neliela pils, un vēl skarbāk, ja šīs izmaksas vairākkāršojas ar 30 gadu ilgām parādsaistībām.
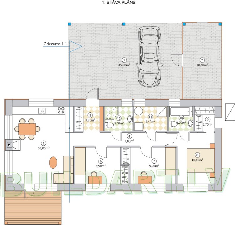
“Laimdota” – ir ļoti vienkārši un racionāli būvējamas mājas projekts, lieliski piemērots pašrocīgai būvēšanai, izmantojami ir standarta, viegli pieejami būvmateriāli, ēkai nav nesošo iekšsienu. Plānojums ir ar plašām un ērtām telpām, labi izsauļotām. Ziemeļu fasādē ir auto nojume, kas ļauj no automašīnas nokļūt mājā nesalīstot. Dienvidu, rietumu pusē terase, tās platība pēc katra ieskatiem un vēlmēm, var būt gan apjumta gan vaļēja. Divas bērnu guļamistabas, un vecāku guļamistaba ar garderobi. Dzīvojamā istabā paredzēts arī kamīns, omulībai un zināmai neatkarībai no svārstīgajām apkures izmaksām.
Šo projektu izstrādājām klientam, ar kuru mums jau bija veiksmīga sadarbība pirms dažiem gadiem – viņš bija pašrocīgi uzbūvējis savai ģimenei māju (projekts “Aldis”), bet saistībā ar jaunām iecerēm, izlēmis būvēt vienstāvu māju, idejiski līdzīgu mūsu projektam “Dūdiņa”, cenšoties to veidot vēl maksimāli vienkāršāku, vēl vieglāk un ātrāk būvējamu. Zīmīgi, ka ne tikai mēs ar klientu ļoti mērķtiecīgi un veikli risinājām skiču stadiju un izstrādājām projektu, bet arī būvvaldes (Mārupes nov.) un skaņojošo iestāžu (ZMNĪ, GASO, Sadales tīkls) darbība ritēja tikpat raiti, un nepilna mēneša laikā tikām līdz saskaņotam būvprojektam.
Ieskats projekta plānā, fasādēs, griezumā un jumta plānā:




Saulainu dzīvošanu!!!