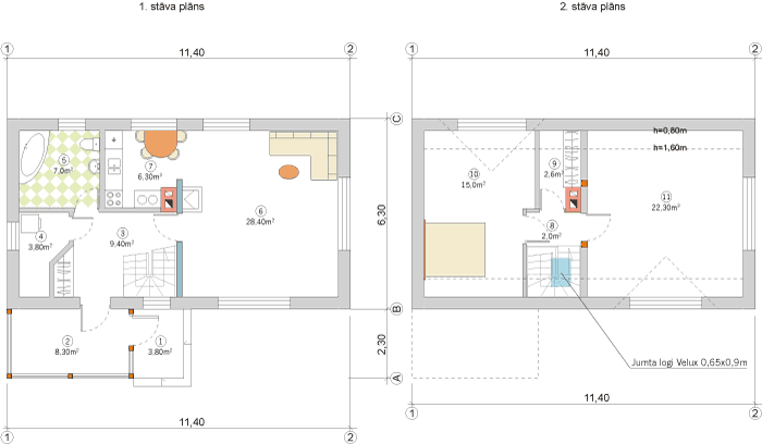
Iepriekšējais attēls Nākamais attēls Ekonomiska 120kvm māja, plāni Ekonomiska 120kvm māja, plāni Ekonomiska 120kvm māja, plāni Dalies: Koplietot Facebook(Atvērsies jaunā logā) Facebook Share on X(Atvērsies jaunā logā) X Patīk Notiek ielāde...