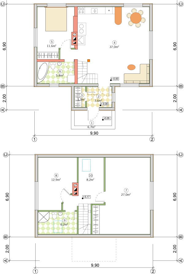
Iepriekšējais attēls Nākamais attēls 121 kvadrātmetru liela lauku māja, plāni 121 kvadrātmetru liela lauku māja, plāni 121 kvadrātmetru liela lauku māja, plāni Dalies: Koplietot Facebook(Atvērsies jaunā logā) Facebook Share on X(Atvērsies jaunā logā) X Patīk Notiek ielāde...