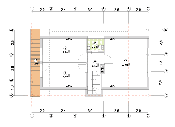
Dzīvojamā ēka ar pirti, guļbūves konstrukcijā

Guļbaļķu ēkas projekts, pirts
Guļbaļķu ēkas projekts, pirts
Guļbaļķu ēkas projekts, pirts
Guļbaļķu ēkas projekts, pirts
Guļbaļķu ēkas projekts, pirts
Guļbaļķu ēkas projekts, pirts

Publicējis Ansis Liepa

Interesējos par Dabai un cilvēkam draudzīgiem būvniecības un arhitektūras risinājumiem, projektēju omulīgas mājas un ēkas, īstenoju dažādas savas idejas, gan būvniecībā, gan 3D printēšanā u.c. tehniska rakstura "hobijos" :)

One thought on “Dzīvojamā ēka ar pirti, guļbūves konstrukcijā

Komentēt