
Katram laikmetam ir savi Minhauzeni, kas gatavi apkārtējai sabiedrībai dot receptes, kuras paši uz savas ādas nav izbaudījuši, bet toties ir veikuši visnotaļ objektīvus aprēķinus klientu vajadzībām. Siltuma daudzums, kas nepieciešams viena kvadrātmetra apsildīšanai ziemas laikā, kad ārā sals ir -10C un vairāk, divās nedēļās kvadrātmetrs patērēs apmēram 35kWh. Līdz ar to dotais aprēķins pierādīs, ka ēkā komforts (ar +20C telpu temperatūru) tiks sasniegts šajās divās nedēļās un siltumekonomija būs 90%, ja mēs tiešām pārējā laikā atteiksimies no siltumenerģijas pievadīšanas ēkai, iztiekot ar saules starojuma enerģiju. Mūsu ieteikums būtu pēc šādiem aprēķiniem veiktajā paraugā ļaut nodzīvot aprēķina veicējiem vienu gadu, lai viņi varētu apliecināt savu aprēķinu patiesumu. Jo jebkuram cilvēkam, bez šaubām, ir patīkami sajust, ka viņš ir maksimāli daudz ietaupījis uz apkures rēķiniem un uzbūvējis videi draudzīgu ēku. Dotajā inženieru veiktajā aprēķina paraugā ir pierādīti mūsu projektētās ēkas plusi un mīnusi, un risinājumi kā pēc inženieru ieskata varētu sasniegt maksimālo ekonomiju. Cits jautājums ir par to, ka sasniedzot šo ietaupījumu apkures izdevumos, iespējams, ēkas būvizmaksas ir pieaugušas pat trijkārt, salīdzinājumā ar vienkārši un ekonomiski risinātām ēkām, kurās tāpat ģimenes var dzīvot cauru gadu, optimālā klimata režīmā, nepārskaitot katru dienu patērētās kilovatstundas. Padomju laika aprēķins, kur kā normatīvs tika norādīts 0,1kW uz kvadrātmetru, dzīvojamām telpām, ar šo normatīvu tika būvētas gan paneļu ēkas, gan ķieģeļu mūra ēkas, kurām atkarībā no sienu konstrukcijas bija dažāda termo inerce, bet tai pat laikā šis normatīvs ļāva telpas labi vēdināt, neuzkrāt tvaikus, CO2 u.c. gāzes dzīvojamās telpās.
Ir labs teiciens – “Vīra nams – tas ir cietoksnis, bet tikai no ārpuses. Iekšpusē bieži tā ir bērnistaba.” (K.Luisa.)
Lai Jums vienmēr būtu bērnistabas siltums un komforts Jūsu mājoklī!
Jau ierasti daudzsološs raksts (/reklāmraksts) internetā: http://www.building.lv/news/1-zinas/118908-pasivo-maju-ipasnieki-atver-durvis
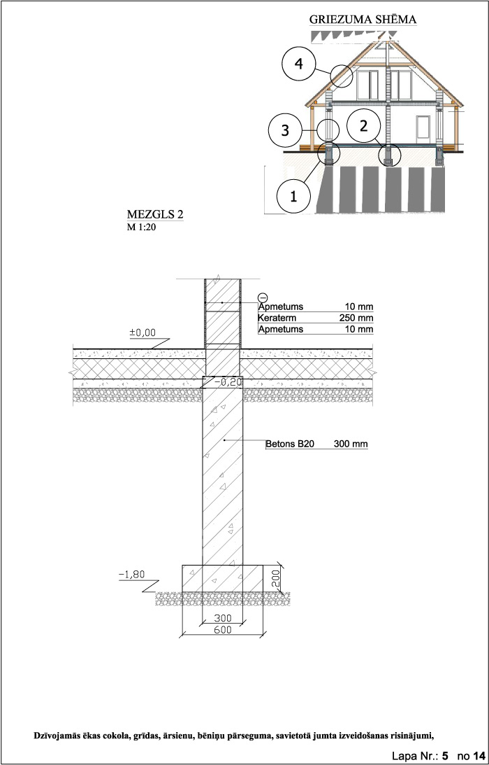
Tālāk pievienojam inženieru veiktu aprēķinu mūsu izstrādātam projektam, un viņu piedāvātu papildus siltumnoturību paaugstinošu risinājumu aprēķinu:




















Balstoties uz šiem inženieru aprēķinātajiem mezgliem un siltumnoturības aprēķiniem ierosinājām diskusiju building.lv forumā, bet kā redzams, tad šāda nostādne neatbilst šobrīd vispārpieņemtajam politekonomiskajam viedoklim par “supersiltināšanas augsto lietderību”, tā rosinot cilvēkiem tērēties priekš būvniecības vairāk kā nepieciešams. Mūsu nostādne vienmēr ir bijusi risināt tehniskos jautājumus tā lai tie ir arī ekonomiski pamatoti. Tomēr prieks, ka kopumā tādi skaļi cipari vairs netiek reklamēti, un cilvēku maldināšana nenotiek tik aktīvi kā pirms dažiem gadiem, kad nulles patēriņa un 10-15kW patēriņa ēkas un to reklāmas bija lielos daudzumos.
Eiropas rosinātais sauklis, ka “katra mājsaimniecība tuvākajos gados kļūst par enerģijas ražojošu uzņēmumu” ir līdzīgi skaļš kā padomju laikos izplatītais sauklis par “tūlītējo ieiešanu komunismā”.
Turpinot diskusiju mūsu mājas lapā, aicinam cilvēkus atsaukties, kuri ir veikuši māju siltināšanas pasākumus, vai dzīvo pasīvās ēkās, publicēt novērojumus un apkures rēķinu reālos skaitļus, nevis teorētiski aprēķinātos.
Paldies Jums visiem!
lai sokas!
One thought on “Par 90% ekonomiju energoefektīvās ēkās”