Mājas un brīvdienu mājas projekts izstrādāts vienotā stilā – minimālisms, vienkāršas ēkas formas, tajā pat laikā paredzot racionālu būvniecības procesu un ērtu, labi izsauļotu iekšējo plānojumu.
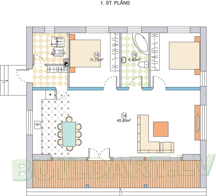
Ēkas projektētas vienā stāvā, gāzbetona bloku mūra konstrukcijā, lēzens vienslīpju jumts ar ruberoīda vai skārda segumu, koka konstr. pārsegums. Dzīvojamā mājā ir divas guļamistabas, un plaša dzīvojamā istaba ar virtuvi, palīgēkā – vasaras, jeb atpūtas namiņā – viena guļamistaba un dzīvojamā istaba ar virtuvi, labierīcības. Ainaviski ēkas viena otru papildina, viena otrai līdzīgas kā divas ūdens piles, lielā māsa un mazā māsa. Ar terasēm ēkas orientētas dienvidu virzienā, attiecīgi iekštelpas ir labi izgaismotas, vannas istabas, kurtuves – ziemeļu pusē, ieeja – rietumu pusē.






Raženu būvniecību!!!