
Kā ikviens cilvēks un ģimene ir atšķirīgi, tā arī nav divu vienādu mājas projektu – esam izstrādājuši gan ļoti kompaktu un ekonomisku māju projektus, viegli un ātri pašrocīgi uzbūvējamus, gan arī projektus lielām un plašām mājām, ar krietni ietilpīgu plānojumu un nepieciešamo telpu skaitu lielām ģimenēm.
Raksturīgi, ka pilsētās zemes īpašumi ir nelieli un attiecīgi arī ēkas tiecas sarauties kompaktākas, kas saistīts ar katra kvadrātmetra vērtīgumu – platības nekad nav par daudz. Bet, lauku teritorijās ir pavisam cita situācija, attieksme, plašums un vēriens – katrs savā saimniecībā ir brīvs attīstīties un rīkoties ērti, atbilstoši savām iecerēm un vajadzībām.
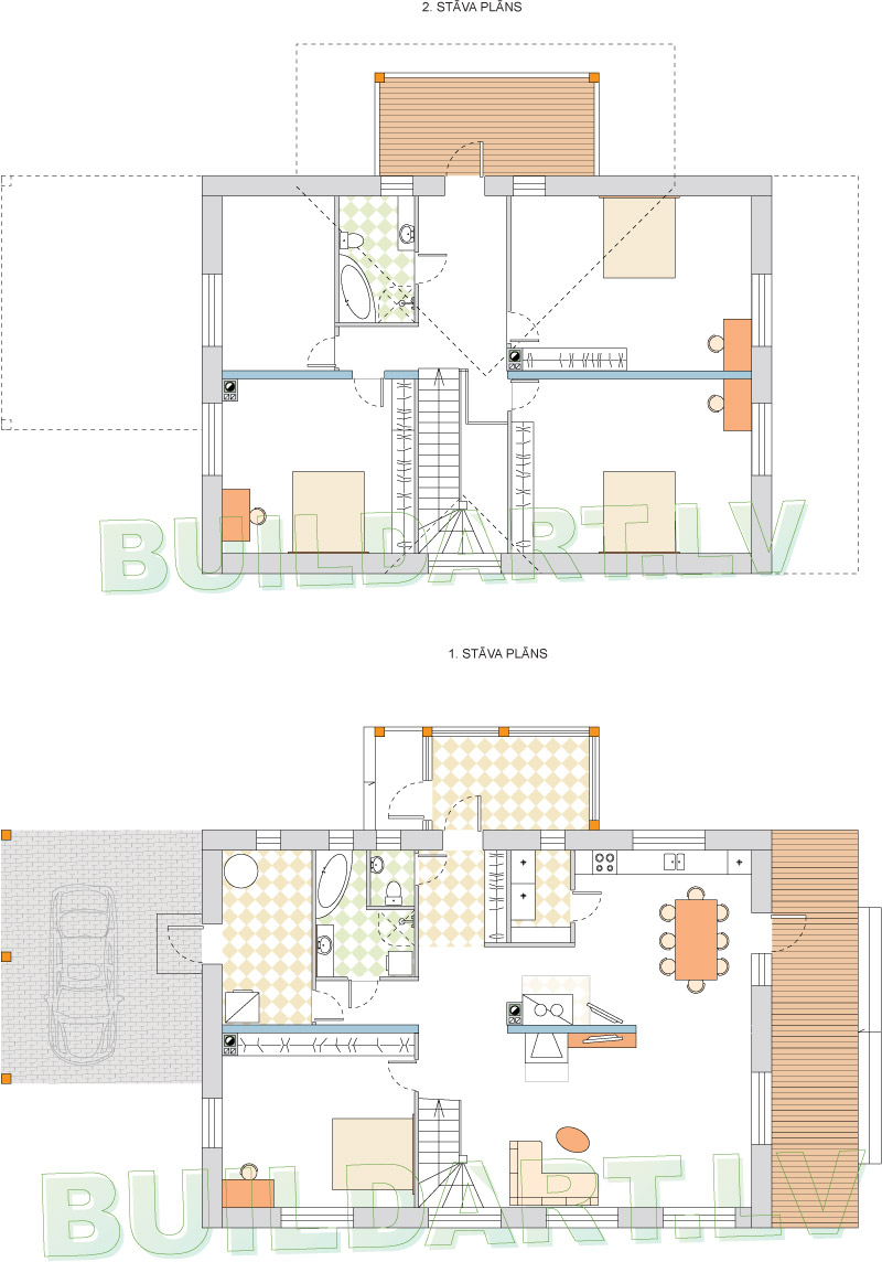
Lauku māju projektu sēriju sākām pirms vairāk kā 12 gadiem, ar dzīvojamās mājas projektu – http://www.buildart.lv/erta-un-praktiska-lauku-maja-220m2. Arī šodien Latvijas laukos cilvēki čakli un radoši strādā sadarbojoties ar Dabas – Zemes un Saules spēkiem. Un ģimenes māju projektējam, saskaņā ar debespusēm, lai pamosties un brokastot vienmēr būtu omulīgi ar rīta gaismu, vakara atpūta – rietošās saules gaismā, bet dzīvojamā istaba – gaiša un saulaina visas dienas garumā.
Ja daļa ļaužu pilsētās maltītes negatavo mājās nemaz, tad laukos ir otrādi – virtuve ir ēkas centrālā vieta, tās pavards un siltums dod enerģiju un omulību visai ģimenei. Pie virtuves – pieliekamais kambaris un projektā paredzēts arī malkas pavards, plīts. Plaša kurtuves/saimniecības telpa, ērta darba apģērbu žāvēšanai. Dzīvojamā istaba ar virtuvi kopā veido ļoti lielu gaišu telpu, ar iespēju apļveida kustībai – bērnu un mazbērnu braukšanai ar trīsriteņiem:). Augšstāvā lielas, ērtas guļamistabas, pietiekamas gan vecākiem, gan bērniem, gan ciemiņiem.
Lauku ainavas plašumam, kur skatiens var klīst un baudīt mieru – atbilst arī mājas plašums un ērtums, mierīgai un omulīgai sadzīvei un atpūtai.




Auglīgu un raženu darbošanos!!!