Dzīvojamā māja projektēta saskaņā ar debesspusēm, iegūstot plašas un labi izgaismotas visas telpas, ziemeļu fasādē atstājot vien garāžu ar saimniecības telpu. Ēkā ir 6 atsevišķas istabas – 5 guļamistabas un darba kabinets. Katra telpa pieklājīgās platībās, ērtas gan darbam, gan dzīvošanai. Garāžas telpa diviem auto, ar saimniecības telpu vai trenažieru zāli. Dzīvojamā istaba kopā ar virtuvi – ēdamistabu – gandrīz 70 kvadrātmetru platībā. Rietumu pusē – segta terase vasaras atpūtai, ar balkonu virs tās, uz kura izeja no vecāku guļamistabas. Ēka konstruktīvi ērti būvējama, nesošās konstrukcijas, nesošās sienas un ārsienas sakrīt, līdz ar to nav lieku sarežģījumu būvniecībā.
Saules motīvs iekļauts arī fasādēs. Minimālās jumta pārkares pasvītro ēkas lakonisko formu. Māja piemērota atbilstoši plašiem zemes īpašumiem.
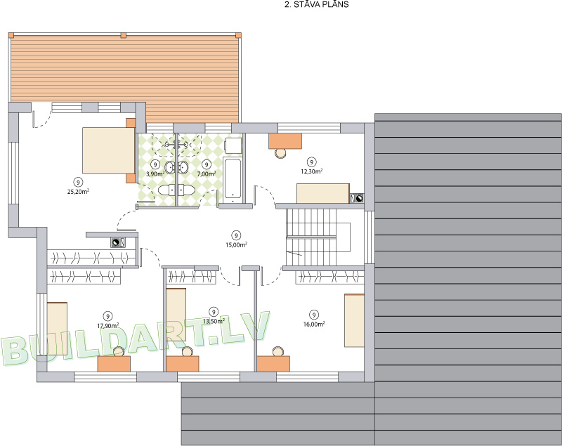
Ieskats projekta plānos un fasādēs:



Saulainu dzīvošanu!!!