Ērtas un elegantas dzīvojamās mājas projekts ar salīdzinoši vidēju-lielu platību. Omulīga terase dienvidrietumu stūrī, plaša, labi izsauļota – 45m2 dzīvojamā istaba ar virtuvi, četras guļamistabas, liela garāža ar saimniecisko telpu daļu. Ieeja ēkā no apjumta lieveņa, sekojoši – vējtveris, ar durvīm uz garāžu, vannas istabu un dzīvojamām telpām.
Ēka projektēta mūra konstrukcijā, ar koka pārsegumiem, skārda jumta iesegumu. Virs dzīvojamās istabas ir iespējama versija ar plašiem augstiem griestiem – siltinātiem pa jumta slīpajām plaknēm. Fasādēs ir iespējams gan koka dēļu apšuvums, ar vai bez papildus siltinājuma, gan arī mūra apdare – apmetums.
Idejiski līdzīgs projekts, ko varam ieteikt aplūkot, ir projekts “Andris”, tam arī ir vairākas versijas, ar un bez garāžas, ar ekskluzīviem stūra logiem istabās, vai ar vienkāršākiem logiem, ierastās logu ailās.
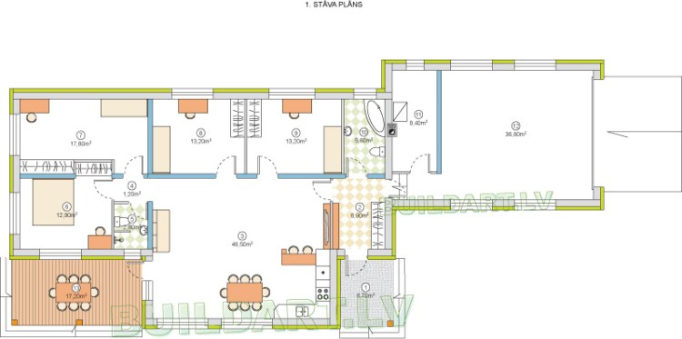
Ieskatam – projekta plāni, fasādes, griezums, jumta plāns:




Veiksmīgu ieceru izdošanos!!!