Brīvdienu mājas projekts ar pirti ļauj ēku ērti izmantot gan dzīvošanai gan atpūtai. Ēkas projekts iekļaujas apbūves platībā līdz 60kvadrātmetriem, kas ļauj šo ēku saskaņot būvvaldē bez liekas birokrātijas. Plaša dzīvojamā istaba ar virtuves darba virsmu, pirts telpu grupa, augšstāvā divas līdz trīs guļamistabas. Dienvidu fasādē – apjumta terase, rietumu pusē – atpūtas terase ar kublu. Būvniecībā iespējamas gan koka statņu konstr. sienas, gan gāzbetona bloku mūra sienas. Katrs izvēlās būvmateriālu pēc savas pieredzes un prasmēm.
Projekts līdzīgs mūsu iepriekš projektētai pirts ēkai “Ķipis”.
Ir iespēja ēkā paredzēt arī malkas pavardu vai plīti.
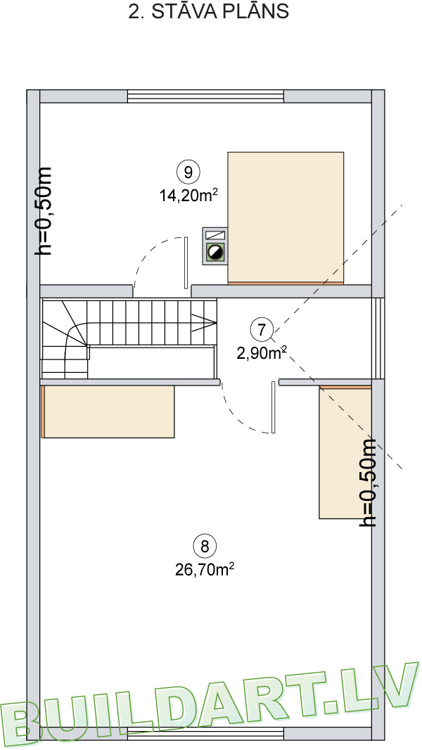
Ieskats projekta plānos, fasādēs:



Omulīgun raženu saimniekošanu!!!