Mūsu praksē ļoti populārs ir racionālas divstāvu mājas projekts “Aldis”, tas realizēts Latvijā jau pārdesmit variantos, šobrīd ir laiks, kad uzbūvētās ēkas īpašnieki noformē pieņemšanai ekspluatācijā, un mēs skaņojam būvvaldē vēl dažas izmaiņas, jaunas idejas, kas radušās būvniecības procesā. Apspriedāmies ar šīs mājas saimnieku un atklājām vairākas būtiskas lietas.
Un sekojoši, mēs ar gandarījumu šo projektu nodēvējām par energoefektīvo – jo ēkas patēriņš apkurei un siltajam ūdenim, izmantojot gaisa siltumsūkni – ir 4700 kilovatstundas elektrības gadā, (vai 3,5tonnas granulu, izmantojot granulu katlu iepriekšējos gados). Šāds enerģijas patēriņš, kā ierasts rakstīt energoauditoru aprēķinos – gada patēriņu sadalot pa mēnešiem – veido 86 eiro ikmēneša izmaksas – apkurei un siltajam ūdenim. Kā arī, jāņem vērā, ka šāda siltumsūkņa apkure ir salīdzinoši viens no viskomfortablākajiem apkures veidiem, kas neprasa ēkas iemītnieku regulāru rūpēšanos.
Aicinam apsvērt, vai pie tik nelieliem apkures tēriņiem un ekonomiskām ēkas būvizmaksām, arī raita būvniecības procesa, kurš lielākoties veikts pašu spēkiem – ir vērts pieskaitīt vēl 1,5x lielākas izmaksas, un 1,5x vairāk laika veltīt būvniecībai, lai sasniegtu energoauditoru teorētiskajos aprēķinos vēlamo A+ standartu, un mēneša elektrības patēriņš 86 eiro vietā būtu 25 eiro? Atsakoties no pāris saldējumiem vai viena restorāna apmeklējuma, ikmēneša līdzekļu ietaupījums būs līdzīgs, veicinot gan veselīgākas ķermeņa proporcijas, gan neprasot no Jums ēkas būvniecībai veltīt vairāk laika un līdzekļu, kā nepieciešams. Bet, būs jāsamierinās, ka dokumentos ēkai būs piešķirta C klase, nevis A+ …
Dažas detaļas par uzbūvētās ēkas siltumizolācijas parametriem – ārsienas – 38cm Rocklite gāzbetons, zem grīdām – 20cm poliuretāna putu paneļi, jumta slīpās plaknes – 20cm celulozes vate un 2cm kokšķiedru plāksne, logi durvis – trijkārša stikla paketes, plastikāta rāmji. Ventilācija – dabiskā, ar noplūdes kanāliem tualetēs, virtuvē, ar pieplūdi gaisam no kurtuves telpā ierīkota pieplūdes kanāla.
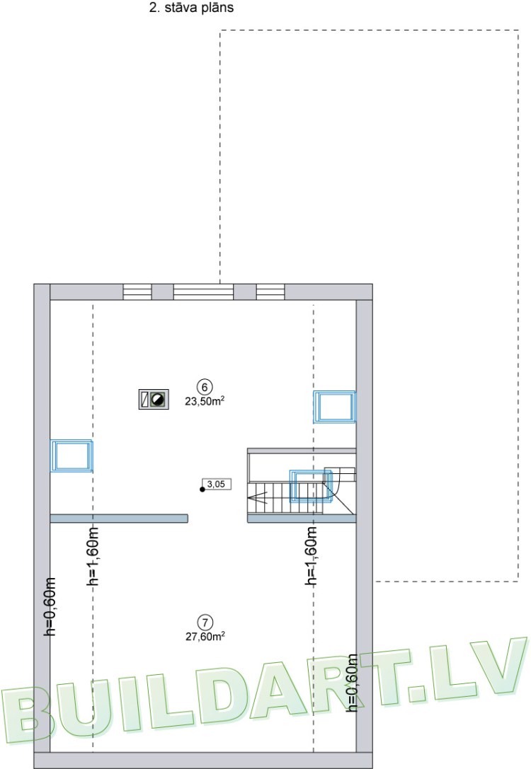
Mājas plānojums, kā ierasts, veidots lai maksimāli izmantotu dabisko apgaismojumu, telpas ir ļoti labi izsauļotas, ēka orientēta debesspusēs, kā arī tās novietojums precizēts saskaņā ar zemes āderu tīklojumu. Pirmajā stāvā ir plaša dzīvojamā istaba ar virtuvi, kurtuve, vējtveris un wc ar dušu. Otrajā stāvā bijām projektējuši vairākas guļamistabas, bet pagaidām ēkas īpašnieks telpas nav sadalījis, jo bērniem pagaidām tīri labi patīk dzīvot plašajā kopīgajā istabā.
Mājas projekta plāni, fasādes, un ieskats energoefektivitātes aprēķinā:









Laimīgu un omulīgu dzīvošanu!!!