Turpinam ekonomisko un kompakto māju projektu sēriju ar šādu jaunu versiju projektam “Dūdiņa” – projektu “Severīns” – arī šī māja ir uzbūvējama bez nesošām iekšsienām, izmantojot standarta, tipveida – viegli pieejamus kokmateriālus pārseguma un jumta konstrukcijas izveidei. Rietumu pusē projektēta apjumta terase, kas reizē kalpo arī par ieejas lieveni, tā pasargājot durvis un sniedzot omulīgu pajumti atpūtai. Dzīvojamā istaba orientēta uz dienvidiem, saņemot saules gaismu arī no austrumu un rietumu puses logiem, dzīvojamā istabā kamīns, siltumam un drošībai elektroapgādes pātraukumu laikā, ziemās. Mājā ir divas guļamistabas, vannas istaba, kurtuve kā arī vējtveris un noliktavas vai garderobes telpa. Dzīvojamā istabā augsti griesti – siltināti pa jumta slīpajām plaknēm. Telpas ir labi izsauļotas, projektētas saskaņā ar debesspusēm. Pie mājas ziemeļu fasādes var veidot automašīnas nojumi, pagarinot terasi – iegūt maksimālo komfortu, lietus laikā no auto izkāpjot un aizejot līdz mājas durvīm pa ceļam nesamirkstot lietū.
Ēkas konstruktīvie risinājumi ir izstrādāti domājot par iespējami vienkāršu un ekonomisku tās būvniecību, lai tā būtu pa spēkam arī pašiem mājas īpašniekiem u neprasītu pārmērīgi daudz līdzekļu. Lentveida monolītbetona pamati, gāzbetona bloku mūra sienas, koka konstrukcijas jumts ar skārda iesegumu. Fasāžu apdare var būt risināta gan apmetuma, gan koka dēļu veidā.
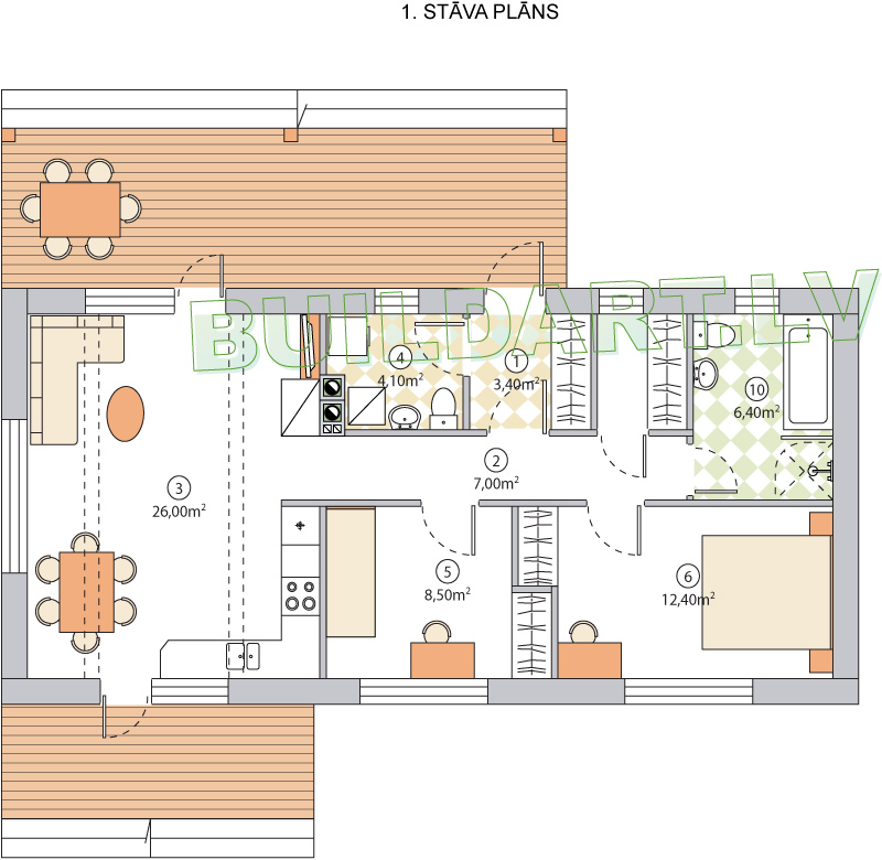
Ieskats projekta plānos, fasādēs un griezumā:



Omulīgu un priecīgu dzīvošanu!!!