Šis ir omulīgas vienstāvīgas dzīvojamās mājas projekts, ar ērtu telpu izkārtojumu un vairākām sadzīvē noderīgām palīgtelpām, kā piemēram – veļas telpa, darba kabinets, kurtuves telpa, noliktava – pieliekamais kambaris pie virtuves, tualete pie ieejas – ērti sasniedzama, ja laiku pavada ārā, dārzā. Plānā ir trīs atsevišķas guļamistabas, labi izolētas viena no otras un plaša dzīvojamā istaba ar virtuvi, no kuras ir izeja uz terasi. Dzīvojamai istabai var veidot arī augstos griestus – siltinātus pa jumta slīpajām plaknēm, un vēl vairāk akcentēt plašuma sajūtu – iebūvējot virsgaismu – kādu jumta logu, kurš padarīs telpu īpaši saulainu. Konkrētais mājas projekts risināts koka statņu konstrukcijā, saskaņā ar pasūtītāja vēlmēm un izvēlētā būvnieka specifiku, bet ēka ir būvējama arī mūra konstrukcijā, kā arī citos materiālos, pēc katra mājas īpašnieka izvēles.
Plānojums risināts saskaņā ar debesspusēm, lai iegūtu iespējami labu izsauļojumu telpās, ēkas ieejas fasāde un daļa palīgtelpu orientētas uz ziemeļu pusi – ziemeļrietumu pusi, dzīvojamā istaba – saņem dienas gaismu no trim debesspusēm. Pie ēkas projektēta arī terase un apjumts ieejas lievenis, ir iespējams ēku papildināt arī ar auto nojumi.
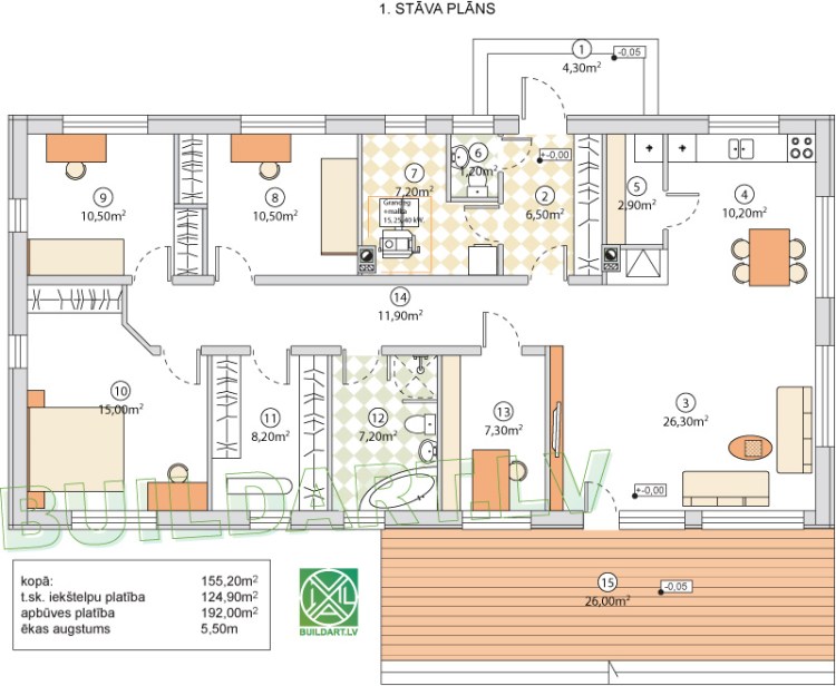
Ieskats projekta rasējumos – plāni, fasādes, griezums:




Priecīgu dzīvošanu un raitu, vieglu būvniecības procesu!!!