Ritot gadiem un būvniecības sezonām nomainot vienai otru, esam izdzīvojuši laikus, kad tikai retais uzskatīja, ka māja mazāka par 150 kvadrātmetriem ir celšanas vērta. Pēc visdažādāko milzīgo māju būvniecības “laikmeta”, sekoja racionālāka pieeja būvniecībai – un projektējām lielu skaitu dzīvojamās mājas divos stāvos – orientējoši 10x10m platībā (piemēram, projekts Agris), un kādus gadus vēlāk – vispopulārākais projekts Aldis – 11x8m apbūves platībā, divos stāvos. Projekts Aldis ir risināts ļoti daudz dažādās versijās, gan ar atšķirīgiem iekštelpu plānojumiem, gan dažādiem konstruktīvajiem risinājumiem, koka statņu versijā, mūra ēkas variantos, ar dzelzsbetona vai koka pārsegumiem, ar plānākām vai biezākām ārsienām. Savā starpā spriežam, ka pensijas gados, varētu doties ekskursijā pa Latviju, aplūkojot un fotografējot uzbūvētās mājas pēc mūsu projekta “Aldis”, jo tās ir vairāki desmiti.
Šī ir jauna versija projektam “Aldis” – ēkas īpašnieks vēlējās realizēt dažus savus sapņus par ēku, gan tehnoloģiski – siltinot to līdz pasīvās ēkas statusam, gan arī dizainiski – tiecoties pēc minimālistiska tēla, tumšpelēkos un melnos toņos. Piedalījāmies projektēšanā divkārt, gan sākotnējā stadijā, gan arī tagad, ēku virzot nodošanai ekspluatācijā, veicot korekcijas plānos u.c.
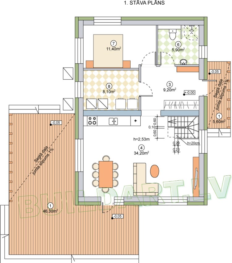
Projekts ir piemērots ērtai dzīvošanai ģimenei ar 3 bērniem, ir nepieciešamais skaits guļamistabu, ērta dzīvojamā istaba, nepieciešamās palīgtelpas. Plānojums orientēts debesspusēs, tā iegūstot iespējami labi izsauļotas telpas. Ēka gāzbetona bloku mūra konstrukcijā, ar siltumizolāciju, glazētu māla dakstiņu jumta segumu, siltumefektīviem logu stiklojumiem.
Ieskats projekta rasējumos:












Priecīgu dzīvošanu!!!