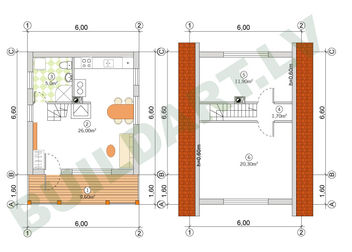
Dažreiz saimniecībā noder neliela saimniecības ēka, tās izmantošanas funkcijas var būt visdažādākās, līdz pat izmantošanai par dzīvesvietu uz laiku kamēr tiek celta dzīvojamā māja. Šajā saimniecības ēkas projektā paredzēta šāda iespēja. Ēka gāzbetona mūra konstrukcijā, ārsienas 30cm biezumā. Koka siju pārsegums, koka spāru jumta konstr. Pamati lentveida monolītbetona, 30cm biezumā. Ēkas kopējā lietderīgā platība ieskaitot terasi 74 kvadrātmetri.
Šī saimniecības ēkas projekta jaunākā versija – saimniecības ēkas projekts “Puds”.
– un – atzīmēsim, ka ir arī vēl jaunāka versija – dārza mājas projekts “Pavasaris”, ar ietilpīgāku, lielāku ēkas platību.


Labdien! Vēlētos uzzināt cik maksā dotās saimniecības ēkas projekts, ja to pasūta pie Jums?
PatīkPatīk
Labdien!
Saimniecības ēkas projekts ir pieejams gan tāds, kā publicēts mājas lapā, gan ir iespējams veikt arī izmaiņas projektā, pielāgot to Jūsu vajadzībām.
uz sazināšanos!
PatīkPatīk
Sveiks,
Veletos zinat aptuvenas si projekta izmaksas. Ekas projekta un materialu, ja nem vera ka buvdarbi tiktu veikti pasha spekiem! Ir velme noskaidrot, kas ir izdevigak, sads projekts vai divistabu dzivoklis (ne Riga)!!
Paldies!!
PatīkPatīk
Labdien!
Katram no variantiem jau ir savi plusi un mīnusi. Saimniecības ēkas projekta plusi – salīdzinoši nelielas ekspluatācijas izmaksas (apkure, uzturēšana, kāpņu telpas un lifta remonta izdevumi utt:). Mīnusi ir tādi, ka jāpieskaita būvniecības izdevumiem klāt arī zemes iegādes izmaksas, zeme – ēkas novietojums ir primārie, svarīgākie parametri labai dzīvošanai. Paveicams ir viss, kā rāda novērotais – cilvēki vienmēr īsteno savus sapņus, ja vien pamazām dara visu nepieciešamo, soli pa solītim. Ēkas projekts var tikt pielāgots Jūsu vajadzībām, būvizmaksas var kļūt lielākas, vai mazākas, bet to dažu desmitu procentu atšķirības dēļ jau neizšķiras galvenais – būt ēkai vai nebūt, tie ir sīkumi, vai dažādas izmaiņas, kas procesā ir pieveicamas, darot, ejot soli pa solītim.
veiksmīgu izdošanos!
PatīkPatīk