
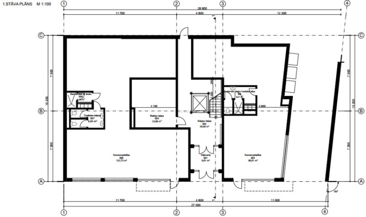
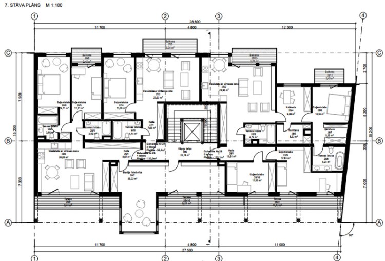
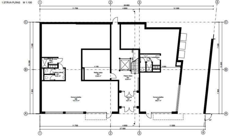
Dauddzīvokļu mājas projekts izstrādāts aizpildot robu starp esošo un projektēto jaunbūvi. Kā visām ēkām pilsētas centrā – pirmajā stāvā paredzēti sabiedriskie pakalpojumi, tālāk dzīvokļi no 2 līdz 4 istabu dzīvokļiem.
Ieskatam – projekta vizualizācijas, plāni un fasādes:








Ražīgu jauno būvniecības sezonu!