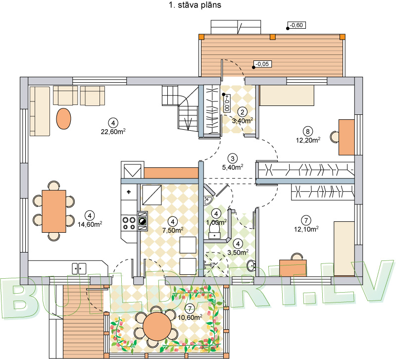
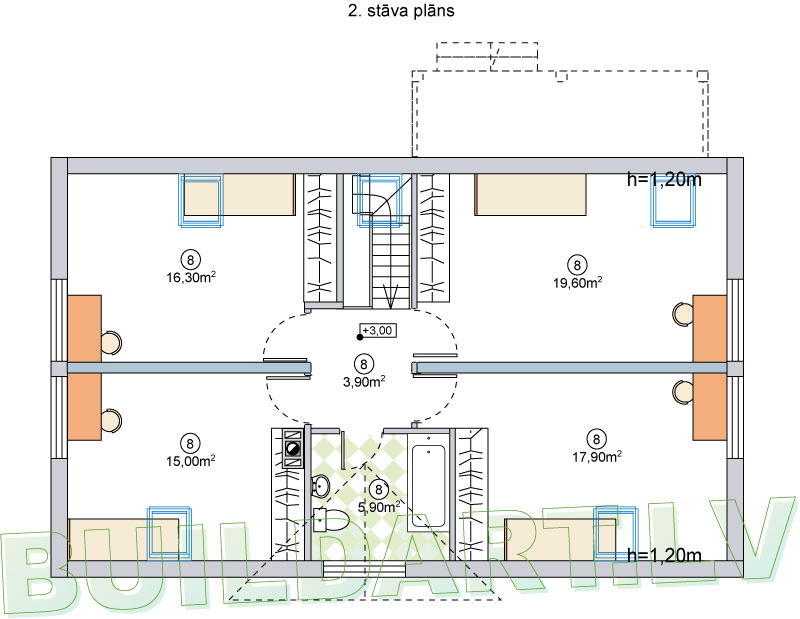
Dzīvojamās mājas projekts “Matīss” izstrādāts attīstot un papildinot projektu “Vineta” padarot ēku vēl ietilpīgāku ar nu jau sešām plašām guļamistabām. Māja piemērota lielām ģimenēm, vai arī vairākām paaudzēm, ģimenēm ar vecākiem vai vecvecākiem. Dienvidu pusē – saulaina oranžērija, izmantojama gan kā atpūtas telpa, gan ēdamistaba. Ietilpīga kurtuves telpa, lai tajā atrastos vieta arī lielākajiem granulu katliem. Dzīvojamā istaba un virtuve – ar logiem visās trīs saulainajās debesspusēs.




Raženu un raitu būvniecību!!!