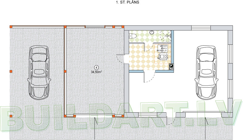
Saimniecības ēka projektēta vienā stāvā, daļa ēkas ir mūra konstrukcijā, apkurināma, ar labierīcībām, kurtuvi (kas pa siltumtrasi apsilda arī dzīvojamo māju) un plaša saimniecības telpa ar auto garāžu. Koka statņu konstrukcijā – saimniecības telpa vai malkas šķūnis, auto vai dārza tehnikas nojume. Kopējā ēkas platība ir 99 kvadrātmetri. Konstrukcijās vienkārša, bet ietilpīga un ērta saimniecības ēka. Projektu ir iespējams pielāgot dažādām zemes īpašuma situācijām, esošajai apbūvei un vajadzībām.
Saimniecības ēkas plāni un fasādes:



Veiksmīgu saimniekošanu!!!