Dzīvojamā māja ar pirti “Helēna”, 175m2

Mājas projekts "Helēna" 175m2

Jo īpaši ziemas aukstajās dienās, ir patīkami savā mājā ne tikai sasildīties, bet vēl jo īpaši izsildīties, ieejot savā pirtī, kas ērti sasniedzama, tepat mājas iekšpusē. Šādi māju projekti, kuros iekļautas pirtis, mums ir vairāki, konkrētais projekts risināts, par bāzi izmantojot mūsu populāro projektu “Aldis”, izvēršot telpas pilnos divos stāvos, tā iegūstot maksimālo platību pie tā paša apbūves laukuma. Projektā paredzēta arī garāža, un skat. tālāk – fasāžu un plānu rasējumus – ir vairākas plāna versijas, par labāko, jāizškiras ēkas īpašniekiem.

Projektētā māja – gāzbetona bloku mūra konstrukcijā, ar koka vai betona pārsegumiem, lentveida, monolītbetona pamatiem, skārda jumtu un koka jumta konstrukciju. Telpu plānojums ar maksimālu dienas gaismas izmantošanu, dzīvojamā istaba ar D-R-A puses logiem, garāža un palīgtelpas – ziemeļu pusē. Ēka papildināma ar balkoniem un terasēm – pievienojot tos “pēc garšas” – cik vien vēlās:)

Sekojoši – ieskats projekta rasējumos:

Mājas projekts "Helēna" 175m2 - fasādes

Mājas projekts "Helēna" 175m2 - fasādes v2

Mājas projekts "Helēna" 175m2 - plāns v2

Mājas projekts "Helēna" 175m2 - 2.st. plāns v2

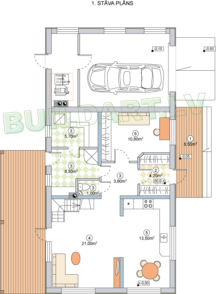
Mājas projekts "Helēna" 175m2 - 1.st. plāns v1

Mājas projekts "Helēna" 175m2 - 2.st. plāns v1

Omulīgu dzīvošanu!!!

Publicējis Ansis Liepa

Interesējos par Dabai un cilvēkam draudzīgiem būvniecības un arhitektūras risinājumiem, projektēju omulīgas mājas un ēkas, īstenoju dažādas savas idejas, gan būvniecībā, gan 3D printēšanā u.c. tehniska rakstura "hobijos" :)

3 domas par “Dzīvojamā māja ar pirti “Helēna”, 175m2

    1. Labdien!
      Jā, mājas projekts Helēna ir pieejams, dažādos būvkonstrukciju veidos, atrakstiet sīkāku informāciju par savām iecerēm un zemes kadastra nr. lai varam iepazīties ar situāciju. Mūsu darbā ietilpst projekta skaņošana būvvaldē, un būvvaldes prasītajās iestādēs, iekļaujam vietēju kanalizācijas sistēmas risinājumu, žogu, vārtus u.c. kas nepieciešams, ārējo tīklu vai pieslēgumu projektus jāpasūta atsevišķi.
      lai raženi sokas!

      Patīk

Komentēt