Ēka paredzēta biznesa un darbības attīstībai – lai pirmajā stāvā varētu iekārtot ērtu darba telpu auto apkopei, otrajā stāvā – iegūt dzīvojamo platību, vai vietu kur nodarboties ar hobijiem un radošiem pasākumiem. Ēkai projektēti plaši logi, gaišas, labi izsauļotas telpas, augsti griesti. Abi ēkas stāvi ir izmantojami neatkarīgi viens no otra, ar atsevišķām ieejām, abās ēkas pusēs veidojami pagalmi, katrs savai funkcijai.
Projektēti lentveida monolītbetona pamati ar pēdu, gāzbetona bloku mūra sienas, dzelzsbetona pārsegums 1. stāvam, kas ļauj iegūt labāku skaņas izolāciju starp stāviem, kā arī uzlabo ugunsdrošības parametrus. Augšstāvam daļēji ir slīpi griesti, daļēji horizontāli, lai ēkas augstumu varētu veidot mazāku. Konstrukciju risinājumi projektēti vienkāršai, racionālai un ekonomiskai būvniecībai, bez liekiem sadārdzinājumiem. Ēka uzbūvēta ļoti raiti, praktiski, gada laikā, papildināsim vēl ar kādu uzbūvētās ēkas attēlu, kad būs iespēja tos uzņemt saulainākā laikā. Projektu var būvēt atkārtoti, kā arī uz šī projekta bāzes veidot Jums piemērotus risinājumus, veikt dažādas izmaiņas, gan ēkas gabarītos, gan plānojumā. Ēkas griezumos redzami augstumi un ēkas konstruktīvie risinājumi, ir iespējama versija arī ar nelielu pagrabu, vēso noliktavu.
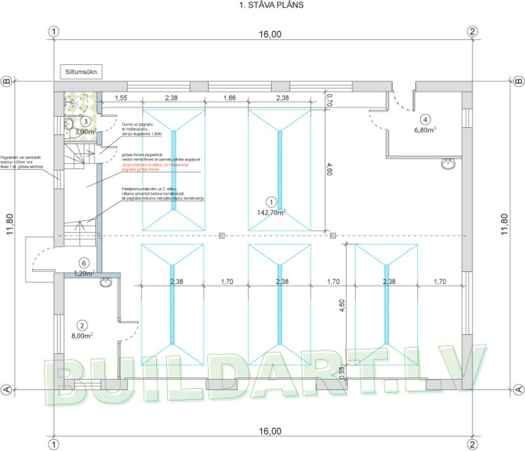
Ieskats projekta rasējumos un ēkas fotogrāfijās:










Raženu darbošanos!!!