Mājas projekts realizēts Jelgavā, tam pieejamas divas versijas – oriģināls un spoguļattēla versija. Mājas īpašnieks mums atsūtīja būvniecības procesa bildes, ko publicējam šai rakstā, varat gūt labu ieskatu soli pa solim, kā vietā kur nav nekā – un pat zemes līmenis nav pietiekami augsts – top māja, sākot ar pamatiem, karkasu, jumtu un beidzot ar iekšdarbiem. Būvniecību mājas īpašnieks veica saviem spēkiem, atsevišķus darbus uzticot palīgiem, piemēram, jumta kopņu montāžu, kur nepieciešama arī smagā tehnika. Nesteidzīgi un ar mīlestību būvēta māja.
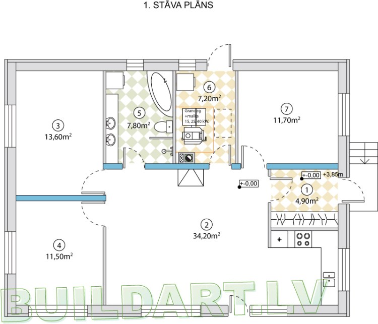
Šī ir vienkārši uzbūvējama, ekonomiska un reizē ietilpīga dzīvojamā māja ar trim guļamistabām un plašu dzīvojamo istabu. Ir arī ērta tehniskā palīgtelpa un vējtveris, labai siltuma saglabāšanai ziemā. Racionāli būvkonstrukciju risinājumi ļauj šo ēku realizēt bez liekiem sadārdzinājumiem, ēkas risinājumi ļauj to bez lielas piepūles izveidot arī par A+ klases – ļoti energoefektīvu māju. Horizontālais griestu pārsegums ļauj virs tā bērt īpaši biezu siltumizolāciju, izvēloties siltus logu risinājumus, 15-20cm putupolistirols zem grīdām – apkures izmaksas būs ļoti ekonomiskas.
Ēka projektēta gāzbetona bloku mūra konstrukcijā, ar koka pārsegumiem, monolīta dzelzsbetona pamatiem, skārda jumta segumu.
Projekta rasējumi, un sekojoši, arī būvniecības process bildēs:
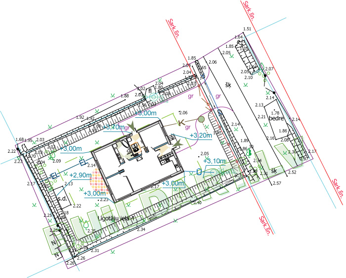
Dzīvojamās mājas projekts “Elza” – plānsDzīvojamās mājas projekts “Elza” – fasādesDzīvojamās mājas projekts “Elza” – plāna versija spoguļattēlāDzīvojamās mājas projekts “Elza” – fasādes otrai versijaiDzīvojamās mājas projekts “Elza” – griezuma versija ar lēzenāku jumtuDzīvojamās mājas projekts “Elza” – griezuma versija ar stāvāku jumtuDzīvojamās mājas projekts “Elza” – novietnes plāns – situācija ar uzbērtu zemes līmeni
Ieskats ēkas būvniecības procesā:
Dzīvojamās mājas projekts “Elza” – būvniecības procesa fotoDzīvojamās mājas projekts “Elza” – būvniecības procesa fotoDzīvojamās mājas projekts “Elza” – būvniecības procesa fotoDzīvojamās mājas projekts “Elza” – būvniecības procesa fotoDzīvojamās mājas projekts “Elza” – būvniecības procesa fotoDzīvojamās mājas projekts “Elza” – būvniecības procesa fotoDzīvojamās mājas projekts “Elza” – būvniecības procesa fotoDzīvojamās mājas projekts “Elza” – būvniecības procesa fotoDzīvojamās mājas projekts “Elza” – būvniecības procesa fotoDzīvojamās mājas projekts “Elza” – būvniecības procesa fotoDzīvojamās mājas projekts “Elza” – būvniecības procesa fotoDzīvojamās mājas projekts “Elza” – būvniecības procesa fotoDzīvojamās mājas projekts “Elza” – būvniecības procesa fotoDzīvojamās mājas projekts “Elza” – būvniecības procesa fotoDzīvojamās mājas projekts “Elza” – būvniecības procesa fotoDzīvojamās mājas projekts “Elza” – būvniecības procesa fotoDzīvojamās mājas projekts “Elza” – būvniecības procesa fotoDzīvojamās mājas projekts “Elza” – būvniecības procesa fotoDzīvojamās mājas projekts “Elza” – būvniecības procesa fotoDzīvojamās mājas projekts “Elza” – būvniecības procesa fotoDzīvojamās mājas projekts “Elza” – būvniecības procesa fotoDzīvojamās mājas projekts “Elza” – būvniecības procesa fotoDzīvojamās mājas projekts “Elza” – būvniecības procesa fotoDzīvojamās mājas projekts “Elza” – būvniecības procesa fotoDzīvojamās mājas projekts “Elza” – būvniecības procesa fotoDzīvojamās mājas projekts “Elza” – būvniecības procesa fotoDzīvojamās mājas projekts “Elza” – būvniecības procesa fotoDzīvojamās mājas projekts “Elza” – būvniecības procesa fotoDzīvojamās mājas projekts “Elza” – būvniecības procesa fotoDzīvojamās mājas projekts “Elza” – būvniecības procesa fotoDzīvojamās mājas projekts “Elza” – būvniecības procesa fotoDzīvojamās mājas projekts “Elza” – būvniecības procesa fotoDzīvojamās mājas projekts “Elza” – būvniecības procesa fotoDzīvojamās mājas projekts “Elza” – būvniecības procesa fotoDzīvojamās mājas projekts “Elza” – būvniecības procesa fotoDzīvojamās mājas projekts “Elza” – būvniecības procesa fotoDzīvojamās mājas projekts “Elza” – būvniecības procesa fotoDzīvojamās mājas projekts “Elza” – būvniecības procesa fotoDzīvojamās mājas projekts “Elza” – būvniecības procesa fotoDzīvojamās mājas projekts “Elza” – būvniecības procesa fotoDzīvojamās mājas projekts “Elza” – būvniecības procesa fotoDzīvojamās mājas projekts “Elza” – būvniecības procesa fotoDzīvojamās mājas projekts “Elza” – būvniecības procesa fotoDzīvojamās mājas projekts “Elza” – būvniecības procesa fotoDzīvojamās mājas projekts “Elza” – būvniecības procesa fotoDzīvojamās mājas projekts “Elza” – būvniecības procesa fotoDzīvojamās mājas projekts “Elza” – būvniecības procesa fotoDzīvojamās mājas projekts “Elza” – būvniecības procesa fotoDzīvojamās mājas projekts “Elza” – būvniecības procesa fotoDzīvojamās mājas projekts “Elza” – būvniecības procesa fotoDzīvojamās mājas projekts “Elza” – būvniecības procesa fotoDzīvojamās mājas projekts “Elza” – būvniecības procesa fotoDzīvojamās mājas projekts “Elza” – būvniecības procesa fotoDzīvojamās mājas projekts “Elza” – būvniecības procesa fotoDzīvojamās mājas projekts “Elza” – būvniecības procesa fotoDzīvojamās mājas projekts “Elza” – būvniecības procesa fotoDzīvojamās mājas projekts “Elza” – būvniecības procesa fotoDzīvojamās mājas projekts “Elza” – būvniecības procesa fotoDzīvojamās mājas projekts “Elza” – būvniecības procesa fotoDzīvojamās mājas projekts “Elza” – būvniecības procesa fotoDzīvojamās mājas projekts “Elza” – būvniecības procesa fotoDzīvojamās mājas projekts “Elza” – būvniecības procesa fotoDzīvojamās mājas projekts “Elza” – būvniecības procesa fotoDzīvojamās mājas projekts “Elza” – būvniecības procesa fotoDzīvojamās mājas projekts “Elza” – būvniecības procesa foto
Interesējos par Dabai un cilvēkam draudzīgiem būvniecības un arhitektūras risinājumiem, projektēju omulīgas mājas un ēkas, īstenoju dažādas savas idejas, gan būvniecībā, gan 3D printēšanā u.c. tehniska rakstura "hobijos" :)
Skatīt vairāk ierakstu