
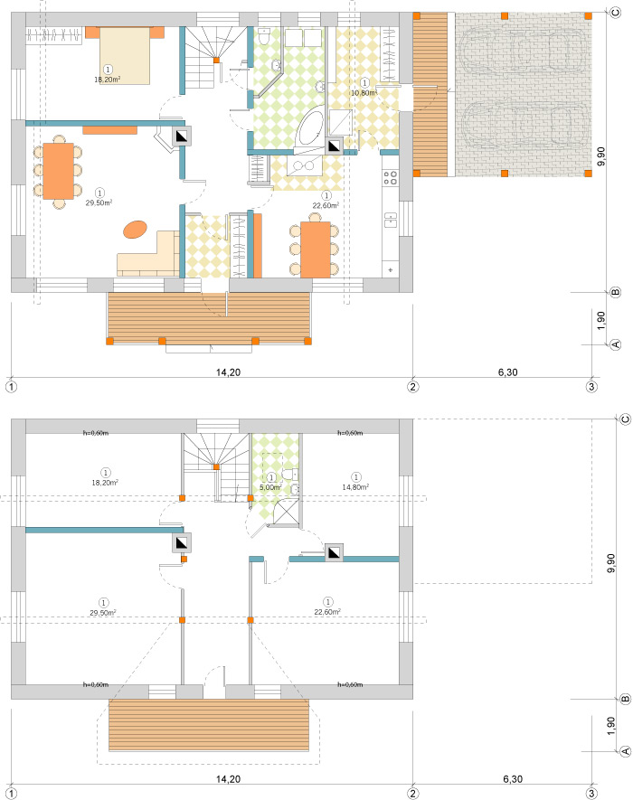
Šeit redzams lauku mājas projekts dažādos variantos, ēkas platība ir 220 kvadrātmetru, tā paredzēta divām ģimenēm – vecākiem un bērniem. Ir pieliekamais kambaris sasniedzams no virtuves, saimnieciskā izeja uz āru no virtuves, kurtuves un pieliekamā kambara, kurtuvē paredzēta platība apģērbu un apavu žāvēšanai, liela virtuve ar saimes galdu kopīgām pusdienām, guļamistaba vecākiem pirmajā stāvā, ērtas kāpnes uz otro stāvu, jumta izbūve kas veido lieveni galvenajai ieejai un pasargā durvis no nokrišņiem, nojume autmašīnai, malkai vai citām saimniecības vajadzībām ēkas austrumu pusē, ar saimniecības ieeju mājā. Šī ēka izstrādāta esošas, nojaucamas ēkas vietā, skursteņi saglabāti esošie.

Otrs variants – paredzot lielāku platību dzīvojamai istabai, ar ēdamzonas nišu un ieeju virtuvē:



Tālāk – attēli no ēkas būvniecības gaitas, ir skaisti izdevies siju-spāru mezgls – spāru pasija balstīta uz pārseguma siju galiem, kas atsegti fasādē. Izmantoas pietiekoši masīvas koka konstrukciju dimensijas, kas arī ēkas vizuālo tēlu dara pamatīgāku, siltāku un skaistāku. Ēka realizēta saskaņā ar projektu, tiešām ērta, projektā paredzot ieejas halli un kāpnes ēkas vidū uzlabojas izolētība starp istabām, kas ir nepieciešams, ja ēkā dzīvo lielāks skaits cilvēku, lielāka ģimene. Praktiska ir kurtuves telpa, kas izmantojama arī darba drēbju žāvēšanai. No dienvidu fasādes logiem paveras skats uz tuvumā esošo upīti.
Katrā ziņā, prieks par sekmīgi ritošo būvniecības gaitu, māja top pamatīga, ērta un tās iemītniekiem draudzīga!

Gribētu uzzināt, kādas varētu būt izmaksas šādas mājas celtniecībai – līdz baltās apdares stadijai.
PatīkPatīk
būvniecības izmaksas būvējot pašrocīgi var būt aptuveni sākot no 100-150Ls par kvadrātmetru, un ap 250Ls kvadrātmetrā pasūtot darbu būvfirmai. Bet par precīzākām izmaksām iesakam konsultēties jau ar konkrēto izvēlēto būvnieku, piedāvājot tam pilnu projekta apjomu ar BK sadaļu.
PatīkPatīk