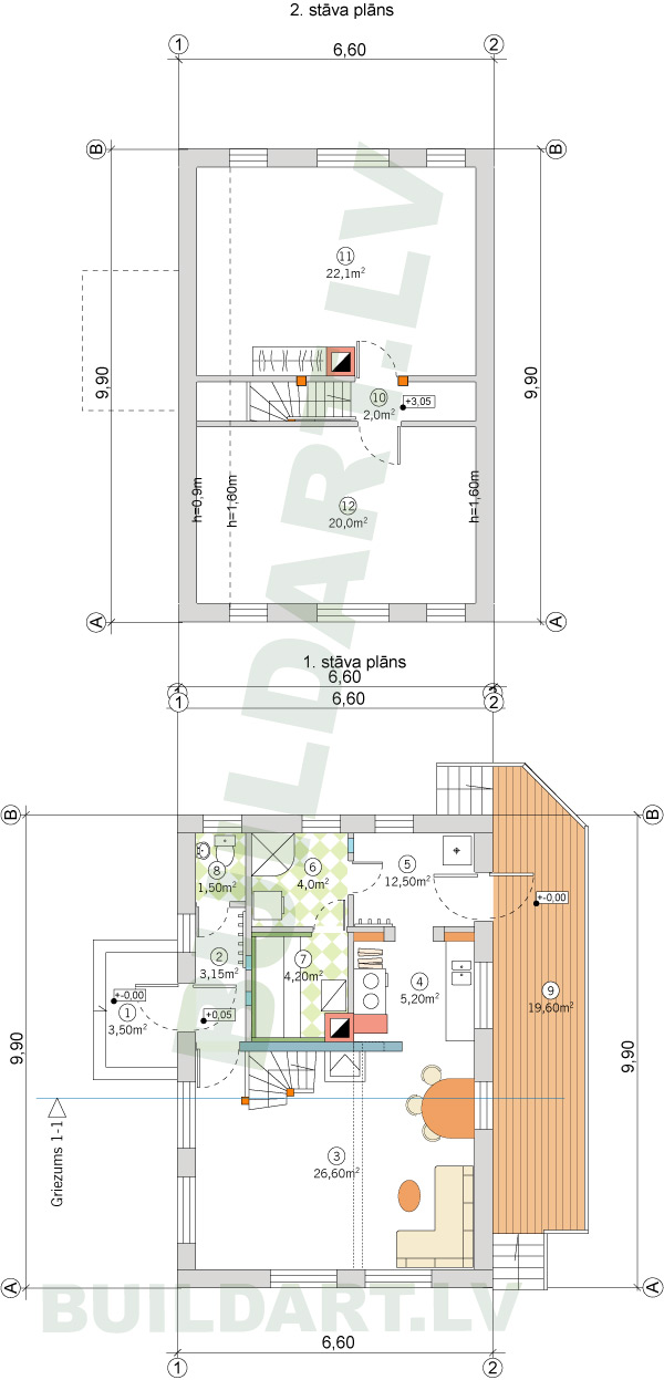
Ekonomiskas ģimenes mājas projekts, ēkai šajā versijā arī pagrabstāvs. Projektētā dzīvojamā platība 120kvadrātmetri.



Dažus gadus pēc šī projekta izstrādes – (2011. līdz 2014.) izveidojām versiju rekordmājas, jeb projekta “Aija” variantu – projekts “Ekonomiska ģimenes māja 2” 95kvm. Pilnu projekta aprakstu varat atvērt sekojot linkam, ieskatam, daži attēli – plāni un fasādes:


Lai Jums izdodas realizēt savas ieceres!
Sveiki,cik vareetu maksaat,pilniibaa pabeigta shaada tipa maaja,un kur vareetu ietaupiit,buvnieciibas procesaa(pasa spekiem izdarit)
Teiksim visu uzbuuveet,bet ieksheejo apdari pasham veikt?Iznjemot san mezglu.Paldies
PatīkPatīk
Ēka līdz pašreizējam stāvoklim izmaksāja 9 000Ls, un tā ir būvmateriālu cena, viss darbs veikts pašrocīgi, ar ģimenes locekļu palīdzību.
Līdz ar to pateikt precīzas tās izmaksas pasūtot būvfirmai nav iespējams, atliek vien rēķināties ar orientējošo ciparu 300Ls par ēkas kvadrātmetru pelēkajā apdarē, kas ir vidēja/ekonomiska mūsdienu būvēšanās cena vienkāršas konstrukcijas dzīvojamo māju segmentā.
lai sokas!
PatīkPatīk
Sveiki.
Man ir doma celt ekonomisku māju ap 100 km2.
Ieasakiet lūdzu lētāko variantu.
Pēteris
PatīkPatīk
Labdien!
Pašlaik strādājam pie projekta Aldis LUX papildinātas versijas, šis ir ļoti racionāls un ekonomiskai būvēšanai piemērots projekts, tajā pat laikā ar gaišām, plašām telpām un reizē arī izskatīgs, ar klasisku, harmonisku ēkas apjomu.
uz veiksmīgu sadarbību!
PatīkPatīk