
Stāsts vai pasaka, kā no cirvja kāta uzvārīt garšīgu zupu. Šeit nepieciešamās sastāvdaļas ir sekojošas:
2 duči kubikmetru gāzbetona (25cm sienu biezums)
ducis koka statņu 15x15cm
ducis koka sijas 20x10cm
divi duči spāres 6x20cm
divi duči kvadrātmetru trijstiklu paketes, bez rāmjiem
pusducis virināmi logi 45x60h
un pašam iesākumam divi cieti betona bumbieri
plus garšvielas pēc vajadzības (naglas, fibras, līmjava kā arī smaidi, uzslavas, joki, atzinības raksti, diplomi, medaļas un sertifikāti ar kopējo devīzi – meistars no debesīm nekrīt)
Lai garšo būvniecības sacepums!!!
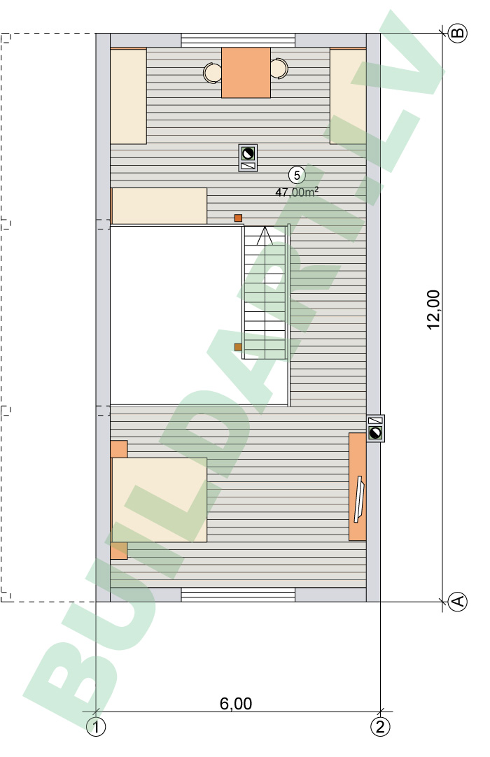
Brīvdienu mājām raksturīgi, ka cilvēki 90% laika pavada ārpusē, tādēļ iekštelpās nav paredzēti atsevišķi darba kabineti un guļamistabas, kas būtu vajadzīgas dzīvojamā mājā.
Lai optimizētu izdevumus, radīts lakonisks apjoms, kur var pavadīt brīvo laiku, pirtējoties, atpūšoties ar draugiem, un sākotnēji izmantot kā pagaidu dzīvojamo ēku, jo kopējās apdzīvojamās platības ir 92 kvadrātmetri plus 13 kvadrātmetri pirts un labierīcību telpas, 25kvadrātmetri – terase. Projekts ir izstrādāts gāzbetona bloku mūra konstrukcijā, iegūtās dzīvojamās platības ir krietni plašākas, kā būtu iegūstamas veidojot ēku no apaļkoka vai frēzbaļķiem.
Līdz pirmā stāva griestu sijai augstums 2,2m, otrā stāva galerijas augstums sākot no 1,3m (drempelis) līdz 2,3m (spāru saišķis).
Ar ko šī ēka atšķiras no klasiskas dzīvojamās mājas – apkure dzīvojamām telpām – kamīns dzīvojamā istabā, malkas plīts virtuvē, kas radīs vienmērīgu siltuma sadalījumu pa visu ēku.
Pirts telpu grupā ir pirts karsētava, dušas telpa, kā arī ģērbtuve un wc.
Paredzētais ēkas sienu biezums ir 20-30cm, kā optimālo var uzskatīt 25cm, plus nākotnē paredzama +5cm siltumizolācija, dod ļoti labus apstākļus brīvdienu mājai, ar pietiekamiem siltumizolējošiem parametriem.
Lielākais pluss šai ēkai – siltināti ir tikai slīpie griesti – jumta plakne, starpstāvu pārsegums virs pirts telpu grupas ir pakots. Galerija – bez siltinājuma. Jumta spāres var būt siltinātas 15-20cm biezumā. Šie ir minimālie parametri, ar kuru palīdzību var iegūt maksimāli lielas lietderīgi izmantojamās platības. Ja kāds radīs vēl ekonomiskāku variantu, ar interesi salīdzināsim. Labprāt uzzinātu arī šīs ēkas būvniecības kopējos izdevumus būvējot ēku pašrocīgi.
Fasādē paredzēts horizontāls nezēmerētu dēļu apšuvums, bet pie šīs ēkas nelielajiem augstumiem ļoti labi ēku var apšūt arī vertikāli trinītī.



Fasāžu versija ar minimālo nepieciešamo virināmo logu daudzumu, terases gala sienas ar dēļu apšuvumu:

Plāns ar apdzīvotu augšstāvu – guļvietas un darba vieta bērniem un guļvieta vecākiem:

Piedāvājam šai ēkai jaunu versiju – ar zaļo jumtu, apaudzēts ar mauriņu, ilggadīgiem augiem, sukulentiem, un plašu nojumi ēkas ziemeļu pusē, malkai vai divām automašīnām:

Lai top!!!
labdien.
kā’das ir materiāli aptuvenas izmaksas???
paldies
PatīkPatīk
Labdien!
Vislabāk par šīs pirts projekta realizācijas izmaksām jautāt būvniekam ar ko sadarbosieties šīs ēkas būvēšanā. Varam Jums sagatavot pirts projektu ar nepieciešamajām izmaiņām, pielāgošanu Jūsu vajadzībām un zemes īpašuma konfigurācijai.
lai raženi sokas!
PatīkPatīk
Kādas ir projekta aptuvenās izmaksas ?
Paldies.
PatīkPatīk
Projekts ir pieejams arī digitālā veidā, nosūtāms uz e-pastu, ar to var doties pie būvnieka un tāmēt mājas izmaksas, gatavoties būvdarbiem un visam tālākajam procesam, arī projekta saskaņošanai.
Uz veiksmīgu sadarbību!
lai sokas!
PatīkPatīk
Labdien! vai kāds var pateikt pie kā var painteresēties par šī projekta cenām?
Ar cieņu, Arnis
PatīkPatīk
Labdien!
uz sazināšanos, nosūtījām Jums e-pastu!
PatīkPatīk
Labdien.
Ļoti iepatikās šis projekts, bet, lai varētu domāt par šī projekta tālāku virzību, ir par maz informācijas. Vai ir iespējams lūgt papildinformāciju par šo projektu?
Paldies!
PatīkPatīk
Labdien!
Lai risinātu projektu konkrēti Jūsu zemesgabalā un ņemot vērā Jūsu nepieciešamības, tajā skaitā arī izmaiņas projektā, mums jāvienojas par tikšanos un darbu uzsākšanu. Kurā Latvijas novadā paredzat būvēties?
lai labi sokas!
PatīkPatīk
Labdien, ieinteresēja divi Jūsu pirts māju projekti.Vēlētos uzzināt kādas būtu izmaksas iegādājoties šos projektus, kā arī konsultāciju dokumentācijas sagatavošanai lai vēlāk iesniegtu nepieciešamās iestādēs . Pirmais projekts, “Pirts draugiem un viesiem ,Otrais projekts,Pirts-brīvdienu vai pagaidu māja .
Paldies
PatīkPatīk
Labdien!
Ir iespējams uzreiz gatavot skaņošanai abus projektus, tā ietaupot laiku kas veltāms birokrātiskajiem procesiem, kā arī topogrāfiskā plāna izmaksas, jo topogr. plāns derīgs vien 2 gadus. Projekti ir pielāgojami Jūsu zemes sitācijai, debesspusēm, veicamas arī izmaiņas plānojumā, augšstāvs papildināms ar jumta izbūvēm utt., saskaņā ar Jūsu vajadzībām. Abi projekti un to dokumentācija jāgatavo mums, arhitektiem, jo ēkas pārsniedz mazēkas statusu. Jums būs jāparaksta projektu eksemplāri un arī būvniecības iesnieguma anketa pirms projektu iesniegšanas būvvaldē.
lai raženi sokas!
PatīkPatīk
Labdien.
Ļoti iepatikās šis projekts kadas ir projekta izmaksas?
PatīkPatīk
Labdien!
Projektiņš ir pieejams, atrakstiet sīkāk par savām iecerēm un vajadzībām e-pastā, kā arī zemes kadastra nr. lai varam iepazīties ar situāciju. Principā, projekts patreizējā versijā ir orientēts debesspusēs, bet, protams, spoguļojot to, vai citādi pielāgojot, var veidot dažādas izmaiņas un ievietot jebkurā zemes īpašumā.
lai izdodas!!!
PatīkPatīk
Kāda būtu aptuvena cena lūdzu ?
PatīkPatīk
Labdien!
Pirtiņas projeks ir pieejams, pielāgojams arī Jūsu vajadzībām un zemes situācijai. Atrakstiet sīkāk par savām iecerēm.
lai Jums raženi sokas!!!
PatīkPatīk