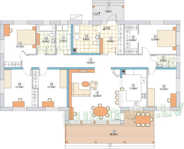
Arī vienstāvu māju var izvērst diezgan plašu un ietilpīgu, kura šajā gadījumā ir īstenota ar ēkas kopējo iekštelpu platību 165 kvadrātmetri. Ir četras guļamistabas un viens darba kabinets.
Privātās telpas ir ar pietiekamām platībām, nav ļoti lielas, bet plašas un ērtas viena cilvēka vajadzībām. Tā pat arī vairākām istabām ir divpusējs izgaismojums, kas ļauj telpā daudz patīkamāk justies visas dienas garumā.
Griestu augstums 3m, kas veido pietiekamu gaisa kubatūru, komfortablai dzīvei, iztiekot bez rekuperācijas ventilācijas sistēmām.
Garāžas un saimnieciskās telpas risinātas atsevišķā ēkā, saistībā ar to šai dzīvojamai mājai logi ir visās fasādēs, būtiskākais izgaismojums ir dienvidu, rietumu, austrumu pusēs, kā arī palīgtelpām ir logi ziemeļu pusē.
Ēkas konstruktīvie risinājumi – ir rekomendējama gāzbetona bloku mūra konstrukcija, bet iespējami arī visi pārējie būvkonstrukciju risinājumi.
Ēkai visapkārt ir priežu mežs, tādēļ košā, siltā oranžā fasāde varētu labi iekļauties saulrieta gaismas un priežu stumbru kolorīta virmojumā. Bet šobrīd vēl īpašnieks nav izlēmis, veidot košo apdari, vai klusinātāku, atturīgāku versiju – zilganpelēkajā toņu gammā.
Šis projekts ir veidots uz mūsu iepriekš izstrādātā projekta Nikola bāzes, bet veidojot ievērojami plašākas telpas, arī apvienojot virtuvi ar dzīvojamo istabu, tā iegūstot kopēju, ērtu telpu. 90cm augstuma lete, pie kuras piesēsties, kas norobežo virtuvi no dzīvojamās istabas ir omulību raisošs objekts visās privātmājās, un viesību laikā virtuves funkcionalitāte tomēr ir neatraujami saistīta ar dzīvojamo telpas daļu. Uz plānā redzamās virtuves letes ir paredzēta kopīga darbošanās un arī pusdienošana, tai pat laikā, aktīvās darba zonas ir pa telpas perimetru. Tādēļ virs šī galda nav vajadzīgs tvaiku nosūcējs, kas bieži vien interjeru sadrumstalo. Starp virtuvi un dzīvojamo istabu – griestos būs masīva koka konstruktīvā pasija, kas arī vizuāli un idejiski atdalīs dzīvojamo vidi no virtuves. Pie šīs sijas, augšpusē var veidot viegla izskata plauktus, piemēram, glāžu glabāšanai. Virtuves darba trijstūris – izlietne – ledusskapis – plīts un papildus darba virsma ir savstarpēji ļoti kompaktā novietojumā un darbojoties virtuvē nav jānostaigā lieki kilometri. Dzīvojamā istabā paredzēts grāmatplaukts, 3m augstumā, (4m garumā) ar lielu grāmatu ietilpību, kas vairs neprasa veidot atsevišķu bibliotēkas telpu.
Ieskats projekta plānos un fasādēs:



Lai piepildās skaistākie sapņi un raiti rit būvniecība!!!