Šis ir izteiksmīgas dzīvojamās mājas projekts ar plānojumu risinātu vienā stāvā, saskaņā ar pasūtītāja vīziju, aiz apdares paslēptām jumta plaknēm, iegūstot minimālistiskas fasādes. Ēka plānota saskaņā ar debesspusēm un zemes īpašuma situāciju – (sekojoši aplūkojama arī tā), māju novietojot pie austrumu puses robežas, saulaino rietumu, dienvidrietumu pusi atstājot atpūtas vajadzībām, ar terasi, pergolu. Mājai ir ļoti plašas un ērtas koplietošanas telpas – dzīvojamā istaba ar virtuvi aptuveni 60 kvadrātmetru platībā. Guļamistabas – 14-16kvm, vecāku guļamistaba ar garderobi un savu vannas istabu. Lauzītā dienvidrieumu – ziemeļrietumu fasāde ar lieliem stiklojumiem labi izgaismo dzīvojamās telpas, arī ērto priekšnamu.
Māja projektēta ērtai dzīvošanai ģimenei ar diviem bērniem, un skaistām viesībām kuplā draugu pulkā. Pret iebrauktuvi zemes īpašumā vērstā fasāde ar ieeju un garāžu – papildināta ar nojumi divām automašīnām, kas ļauj arī lietus laikā no auto nokļūt līdz mājas ieejas durvīm nesamirkstot. Projektēta arī garāža, neveidojot atsevišķu, brīvstāvošu saimniecības ēku – ar garāžu būs jāpietiek visu ragaviņu, velosipēdu, dārza u.c. piederumu glabāšanai. Ainaviski teritorijas nepateicīgā stūrainā forma izmantota ļoti racionāli un ērti, vislielāko brīvo, un saulaino teritoriju atstājot atpūtai, ir vieta arī kādam lielākam kokam, skaistumkrūmam, un pa perimetru veidojams dzīvžogs.
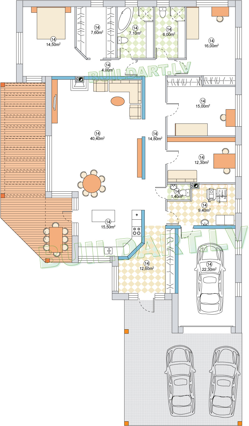
Ieskats projekta plānojumā, fasādēs, novietnes plānā:



Raženu visu labāko ieceru izdošanos!!!
Ieskats projekta realizācijas gaitā – būvniecības procesa bildes –
tiek ieraktas kanalizācijas caurules, montētas griestu sijas, sienas uzmūrētas vajadzīgajā augstumā:











Turpinājums sekos!
2 domas par “Mājas projekts “Toms”, 200m2”