Dzīvojamo māju projektējām ērtai dzīvei divām – bērnu un vecāku ģimenēm, katrai – savs stāvs. Mājai arī ērtas palīgtelpas un garāža, virs kuras liela atpūtas terase, arī balkons ar apjumtu terasi ēkas dienvidrietumu fasādē.
Ir divas dažādas devīzes – senāk, karaļiem bija devīze – “skaldi un valdi”, bet mums ir devīze – “vairo un dalies”. Mums pieejamās zināšanas un pieredzi mēģinam nodot lasītājiem, līdz ar to arī paši tiecamies pēc jaunām.
Tehniska rakstura atkāpe – Nereti ar klientiem spriežot par viņu iecerētajām mājām, un arī to projektēšanas procesā, nākas uzklausīt jautājumus, kādu jumta veidu mēs ieteiktu, kā labāko risinājumu. Saprotams, katra situācija un katrs ēkas stils un raksturs jau nosaka atbilstošu jumta veidu, lai gan, ir nianses, kuras īsumā mēģināsim Jums izklāstīt. Tātad, šīs ēkas pamata prototips – sākotnējā ideja ir ar pilnībā taisnstūra formām fasādēs, ar jumtu – paslēptu aiz parapeta. Bieži šādus jumtus, daudz neiedziļinoties, izbūvē un iesedz ar kausētu ruberoīda segumu, lietusūdens novadīšanai paredzot kritumu vien 3 grādu robežās. Bet, aplūkojiet skolas, iestādes, citas lielas ēkas, kas būvētas senāk – lielai daļai no tām, jumti pārveidoti, lai būtu izmantojams “klasisks” jumta segums, lokšņu materiāli, skārds u.c. veidojot ūdens noteci uz malām. Latvijas klimatā rubeorīda jumta segumiem klājas grūti – pie lēzena jumta slīpuma, ziemā, apledojumā, sniegā ūdens no tā aizvadās slikti, un temperatūrai svārstoties, ūdens iekļuvis katrā mazākajā plaisiņā, ar ledus spēku to plēš lielāku un lielāku, īsāk sakot – šādi jumti pie ļoti laba “ceļavēja” kalpos tikai 5-12 gadus, līdz nākamajam remontam. Ja nevēlaties ar jumta maiņu nodarboties regulāri, jāizbūvē ilgmūžīgāki jumta risinājumi. Un pie šāda “paslēptā jumta”, minimālistisko fasāžu stila ēku projektiem esam izdomājuši risinājumu, kā šos jumtus veidot ilgmūžīgus, iesedzot ar valcprofila skārda segumu, kurš arī pieļauj diezgan lēzenu jumta leņķi, bet neveido problemātiskos ruļļmateriālu savienojumus, kuru vienīgā noturība būtu dažādi hermētiķi, kas saules un ledus ietekmē padodas. Tā ir iespējams veidot vizuāli izteiksmīgu ēku, un tajā pat laikā praktisku, racionālu būvniecībā. Tālāk fasāžu attēlos devām ieskatu vēl pāris jumtu veidos – vienkāršs divslīpju jumts ir gan ekonomisks būvniecībā, gan arī tektoniski to iespējams veidot labi saderīgu ar ēkas kopējo tēlu, pietiekami elegantu. Ja tomēr vēlaties jumtu ar vairākām slīpnēm, kā redzams nākamajā attēlā, četrslīpju jumtu, un pie sarežģītāka ēkas plāna – slīpņu skaits vēl pieaug, tad, protams, ekspluatācijā arī šis jumts neatpaliks no vienslīpju vai divslīpju jumtiem, bet būvniecībā prasīs ievērojami vairāk darba, vairāk atgriezumu, un mazliet sarežģītāku arī jumta konstrukciju izbūvi, jo parādīsies diagonālās spāres, un attiecīgi arī jumta spāru pasiju novietojums un konfigurācija būs sarežģītāka, lai iegūtu jumta slodžu statisku balstīšanos. Atgriezumi veidojot skārda segumu var arī īpaši nesatraukt ēkas būvētāju, bet pie māla vai betona dakstiņu jumta seguma – gan dakstiņu piezāģēšana, gan kores un sateknes pie darba un izdevumu apjoma pieliek savu artavu. Protams, ir ēku stili, tēli, kuriem cits jumta risinājums, kā vien četrslīpju, vai daudzslīpju, nav piemērojams. Kā jau daudziem tas būs zināms – iespējams ir gandrīz pilnībā viss, gan projektējams, gan uzbūvējams, bet, būtiski zināt, kas tieši ir nepieciešams – kāds ir sapnis un vīzija par iecerēto ēku, un kādi ir pieejami resursi šīs vīzijas īstenošanā.
Vairākiem mūsu projektiem esam veidojuši ilgmūžīgu jumta risinājumu (ar skārda segumu), tajā pat laikā ēkas vizuālo tēlu veidojot ar minimālisma stila fasādēm, bez redzamām jumta konstrukcijām, saites uz dažiem piemēriem:
- Dzīvojamās mājas projekts vienā stāvā – Toms, dzīvojamās mājas projekts Jūlija, savrupmājas projekts Baltais gulbis.
Interesantākam ieskatam – mājas projektu izveidojām ar trim dažādiem ēkas jumta risinājumiem, varat aplūkot, kā mainās ēkas tēls atkarībā no jumta veida, ierakstiet komentāros, kurš, Jūsuprāt, ir pievilcīgākais.
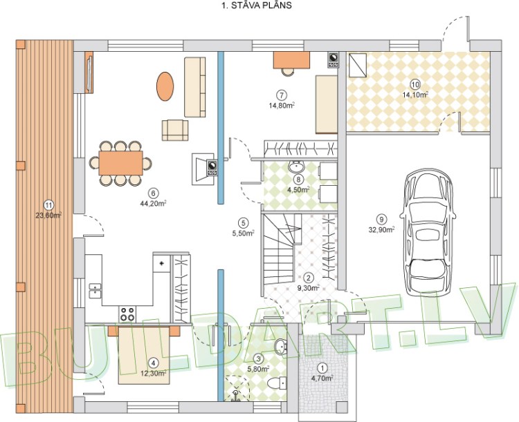
Mājas projekta rasējumi – stāvu plāni un fasādes, trīs variantos:





Priecīgu būvniecību!!!
One thought on “Divu ģimeņu dzīvojamās mājas projekts “Līčupe”, 240m2”