Energoefektivitātes blefs

Mājas projekts - Villa Agnese - ēkas foto

2013. gadā sasakaņotā projekta privātmāja (projekts Villa Agnese) šogad tiek nodota ekspluatācijā, un tai tiek pievienots ēkas pagaidu energosertifikāts, skat. attēlu:

Ēkas pagaidu energosertifikāts projektētajai un uzbūvētajai ēkai
Ēkas pagaidu energosertifikāts projektētajai un uzbūvētajai ēkai

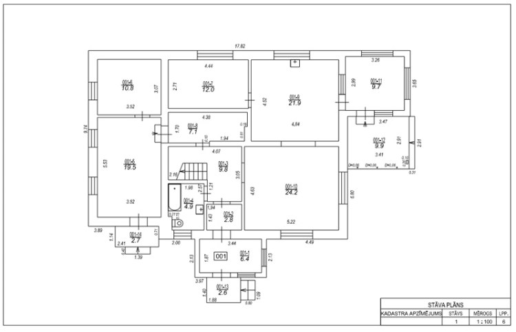
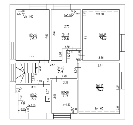
ar references platību 176.1 lai gan mūsu projektā ēkai ir 190 kvadrātmetri. Inventarizācija zemāk par 1,6m lietderīgo platību augšstāvā ar slīpajām sienām neuzrāda. Skat. inventarizācijas plānu:

energ_plan2

projektētās ēkas inventarizācijas lietas plāns

Energosertificētais aprēķins rāda kopējo patēriņu 102kwh uz kvadrātmetru apkurei un siltajam ūdenim. Kopējais enerģijas patēriņš ar elektrisko iekārtu izmantošanu ir 133kwh uz kvadrātmetru. Tabulā norādīts A+ klases kopējais patēriņš – 22kwh uz vienu kvadrātmetru. Tātad, salīdzinot ar A+ klasi šīs ēkas patēriņš ir 6 reizes lielāks un ēka novērtējumā atbilst D klases rādītājiem. Šī brīža energo patēriņš krāsu izteiksmē ir norādīts salātzaļajā zonā, līdz tumši zaļajam ir kur augt. Salīdzinājumā jebkura veikalā iegādājamā veļas mašīna vai trauku mazgājamā mašīna ir ar A+ vai A un daudziem plusiem, citas klases nemēdz būt.

Privātmājas īpašniekam, kā iepriecinājums, jājūtās, ka šis novērtējums atbilstoši D klasei, līdzīgi, kā tas ir iesācējiem dejotājiem, kuri pakāpeniski virzās uz augšu. Vai šādas klases sadalījums pastāv arī privāto auto tirgūt, grūti teikt.

Interesanti saprast šodien, kā tiek aprēķināta siltināto un nesiltināto dzīvokļu energoefektivitāte, ja galu galā, īpašniekiem visus rēķinus piestāda megavatos.

Vai ir vērts kāpināt klases un tiekties uz augstākiem rādītājiem, lai sasniegtu A+ vai kaut ko tamlīdzīgu – tas ir paradīzi zemes virsū, un mēģināt ietaupīt 4 tonnu granulu vietā apkurei, iztikt ar 1 tonnu gadā, ir liels izaicinājums privātīpašniekam.

Vai Latvijā ir kāda ekspluatācijā nodota ēka ar A+ klasi, vai tie ir tikai sapņu mājas aprēķini un sertifikātu autori dzīvo savā burbulī, izstrādājot šo aprēķinu? Interesanti, vai kāds no pasīvo ēku cēlājiem, kas saņēma valsts atbalstu ēkas būvniecībai, ir sasniedzis šos A+ klases rādītājus.

Kopumā var teikt, privātmājas īpašnieks apkuri ieslēdz kad tā vajadzīga, centralizētā apkure pagājušogad tika ieslēgta septembra vidū, šogad – oktobra vidū. Tātad, megavati vienā gadījumā, un kilovati pēc aprēķinātā sertifikāta, jāteic tomēr ir atšķirīgas vērtības. (1Mw =1000Kw). Vai var daudz ietaupīt uz siltā ūdens patēriņa, bērnībā, kad mājā bija malkas apkures boileris vannas istabā, ģimenē bērnus mazgāja pa pārīšiem, lai siltais ūdens pietiktu visiem ģimenes locekļiem. Konkrētajā gadījumā grūti teikt, vai ģimene ar četriem bērniem arī līdzīgi optimizē ūdens patēriņu, katrā laikmetā ir savas tradīcijas.

Nobeigumā var teikt, ar Selindžera vārdiem – “Celiet augstāk spāres, namdari!”, jo Jūsu pašbūvētā ēka nekad nevarēs sasniegt tos daudzdzīvokļu ēku rēķinus, kurus raksturo cipari ar patērētajām megavatstundām.

Papildināts:

Mūsu jaunajā rakstā varat iepazīties ar koriģētu energoaprēķinu, publicētas visas 19 aprēķina lapas.

Lai skaista ziema un silts nams katram!!!

arhitekts Valdis Liepa.

Publicējis Ansis Liepa

Interesējos par Dabai un cilvēkam draudzīgiem būvniecības un arhitektūras risinājumiem, projektēju omulīgas mājas un ēkas, īstenoju dažādas savas idejas, gan būvniecībā, gan 3D printēšanā u.c. tehniska rakstura "hobijos" :)

4 domas par “Energoefektivitātes blefs

  1. Jau vairāki gadi visām elektroiekārtām ir “samainītas klases” un visi, kas bija A tagad ir F, bet A+++ pārtapuši par C vai D.
    Otra lieta, ko jāņem vērā – tā ir tikai teorija (ES direktīva par to, ka šāds aprēķins ir jāveic, tādu esmu pieredzējis dzīvojot arī citās ES valstīs).
    Tāpat kā automašīnai – norāda patēriņu pie noteiktiem nereāliem apstākļiem 5L/100km, bet dabā būs 6-7 vai pat 8L uz 100km.
    Ja mājā turēsiet vien 18’C un to nevēdināsiet, iekšā/ārā pa durvīm neiesiet, un āra temperatūra būs visu laiku noteikti X ‘C, tad iespējams to varēs sasniegt 🙂

    Publicējis 1 person

    1. Labdien!
      paldies par komentāru! Teiksim, raugoties uz visu ļoti rožainā gaismā – sauksim tos par joku un humora momentiem:) piemēram, kā var būt viens elektriskais sildītājs, vai boileris A+++ vai cik nu vēl super plus efektīvāks par citiem – sildīšanas tehnoloģija nav mainījusies desmitiem gadu, vienīgais, ko var uzlabot siltūdens boilerim – sabiezināt tā siltumizolācijas slāni, lai ūdens neatdziest, neatdod siltumu telpai (bet, šādi super biezi siltināti boileri veikalos nav redzēti?). Viss pārējais – cik kilovatstundas nepieciešamas konkrēta ūdens daudzuma uzsildīšanai no – līdz konkr. temperatūrai – fizikas likumi, kuri nav ietekmējami ar A+ etiķešu uzlīmēšanu. Praksē redzams, ka arī automašīnu, kā jau pieminējāt, reklamētie patēriņi atšķiras no reālajiem, ir gan entuziasti, kas attiecīgi mierīgākā stilā braucot, vairāk gaisu pumpējot riepās un pat veicot dažādas aerodinamikas modifikācijas utt, iegūst labākus rādītājus, par ražotāja solītajiem. Savā ikdienā to var ļoti labi eksperimentāli redzēt un pierādīt braucot ar elektro auto, kuram tā energo ietilpība ir visnotaļ ierobežota, un beidzas ātrāk, kā gribētos:) attiecīgi, izvairoties no cīņas ar pretvēju – braucot ātrumos līdz 60kmh nobraucamais attālums ir gandrīz 2x tālāks, kā braucot ar 100kmh. Te noteicošais ir cilvēka paraudmi, prasmes un mērķi – kuru reizi ekonomija ir prioritāte, kuru nē.
      lai raženi sokas!!!

      Patīk

Komentēt